Домиани — Магазин «P. Conte»

Магазин «P. Conte»

г. Красноярск, ул. Партизана Железняка, ТРЦ «Июнь» - 2 этаж.

Клиент

Магазин «P. Conte»

Дата проекта

2008

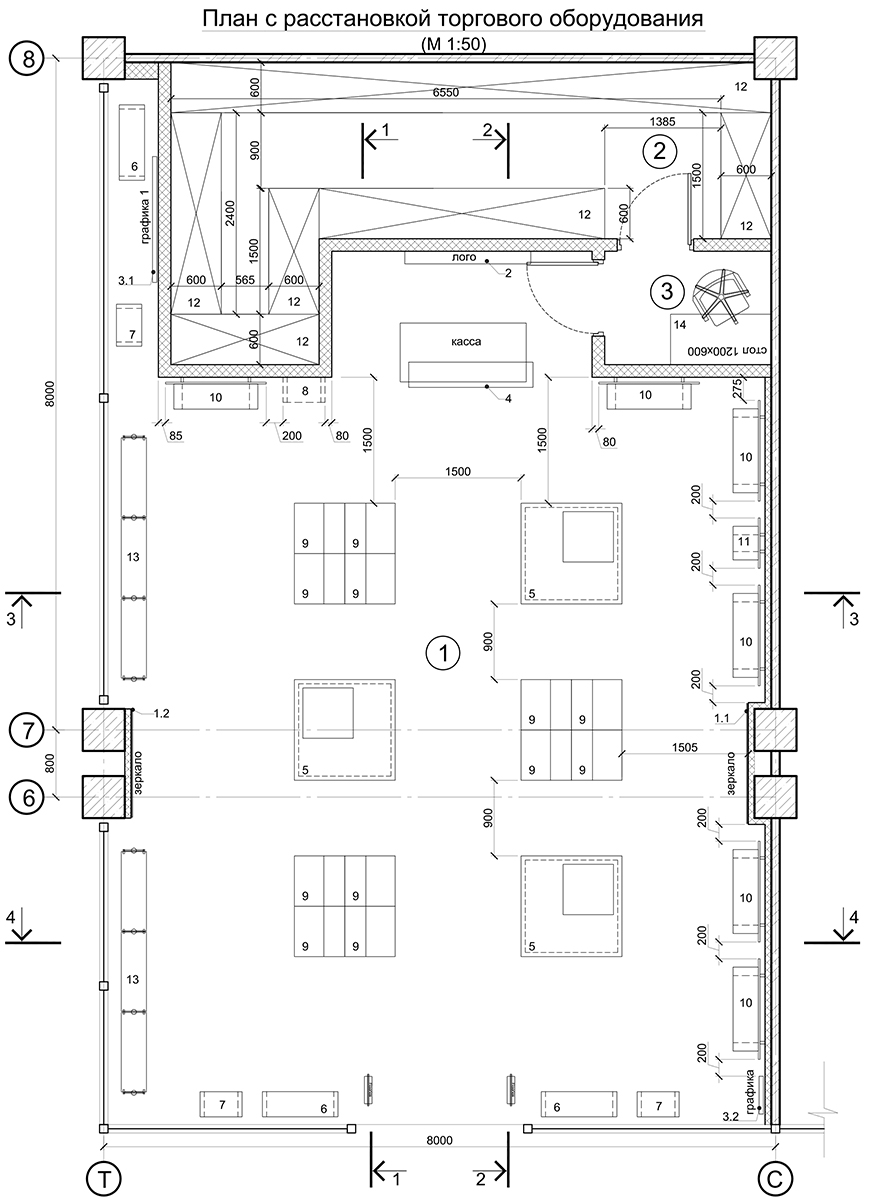
Площадь

99,45 м2

Статус проекта

Введен в эксплуатацию.

г. Красноярск, ул. Партизана Железняка, ТРЦ «Июнь» - 2 этаж.

Магазин был передан для производства работ в виде пустой ячейки в черновой отделке. Силами Domiani произведен весь комплекс отделочных работ, согласно проектной документации: устройство стяжки пола с последующим монтажом керамического гранита 600х600мм; возведение перегородок из ГКЛ и обшивка стен ГКЛ на металлическом каркасе с последующим шпатлеванием и окраской; устройство 2-х уровневого подвесного комбинированного потолка ГКЛ по металлическому каркасу с потолком «Грильято»; устройство сварного, металлического, подвесного каркаса, в за потолочном пространстве для обслуживания инженерных систем.

В рамках данного проекта domiani взяло на себя обязательства по разработке и согласованию проектной документации (инженерные сети: раздел ЭОМ – электроснабжение; ОВ – вентиляция и кондиционирование воздуха) со службами ТРЦ «Июнь» и Ростехнадзором.

Произведен монтаж и пуско-наладка инженерных сетей: электроснабжение, электроосвещение, вентиляция и кондиционирование воздуха, слаботочные сети.

Осуществлена сборка торгового оборудования.

Схема