Домиани — Магазин «Adidas»

Магазин «Adidas»

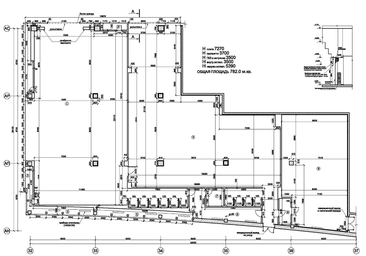
г. Красноярск, ул. 9 мая, д. 77, ТДЦ «Планета» - 1 этаж.

Клиент

Магазин «Adidas»

Дата проекта

2010

Площадь

810 м2

Статус проекта

Введен в эксплуатацию

В рамках данного проекта произведена реконструкция магазинов Адидас SPCS И Рибок Сoncept в магазин Адидас New Core. Задача осложнялась необходимостью проводить работу в условиях действующего магазина в два этапа (без выключения).

Были выполнены все строительно-монтажные работы в соответствии с проектной документацией. Произведен монтаж и пуско-наладочные работы инженерных сетей (вентиляция и кондиционирование воздуха, электроснабжение, освещение, пожарно-охранная сигнализация, система водяного пожаротушения, слаботочные сети). Произведено изготовление и монтаж торгового оборудования и складских стеллажей.

Схема