Домиани — Магазин «Zima letto»

Магазин «Zima letto»

г. Красноярск, ул. 9 мая, д. 77, ТДЦ «Планета» - 1 этаж.

Клиент

Магазин «Zima letto»

Дата проекта

2008

Площадь

114,8 м2

Статус проекта

Введен в эксплуатацию.

Магазин был передан для производства работ в виде пустой ячейки в черновой отделке. Силами Domiani произведен весь комплекс отделочных работ, согласно проектной документации: устройство стяжки пола с последующим монтажом керамического гранита 600х600мм; возведение перегородок из ГКЛ и обшивка стен ГКЛ на металлическом каркасе с последующим шпатлеванием, монтажом гофрированного листа и окраской; устройство подвесного 2-х уровневого потолка ГКЛ по металлическому каркасу; устройство сварного, металлического, подвесного каркаса, в запотолочном пространстве для обслуживания инженерных систем.

В рамках данного проекта domiani взяло на себя обязательства по разработке и согласованию проектной документации (АР – архитектурные решения. Инженерные сети: раздел ЭОМ – электроснабжение; ОВ – вентиляция и кондиционирование воздуха) со службами ТДЦ «Планета» и Ростехнадзором.

Произведен монтаж и пуско-наладка инженерных сетей: электроснабжение, электроосвещение, вентиляция и кондиционирование воздуха, слаботочные сети.

Осуществлена сборка торгового оборудования, изготовлены металлические стеллажи в подсобном помещение для хранения товара.

г. Красноярск, ул. 9 мая, д. 77, ТДЦ «Планета» - 1 этаж.

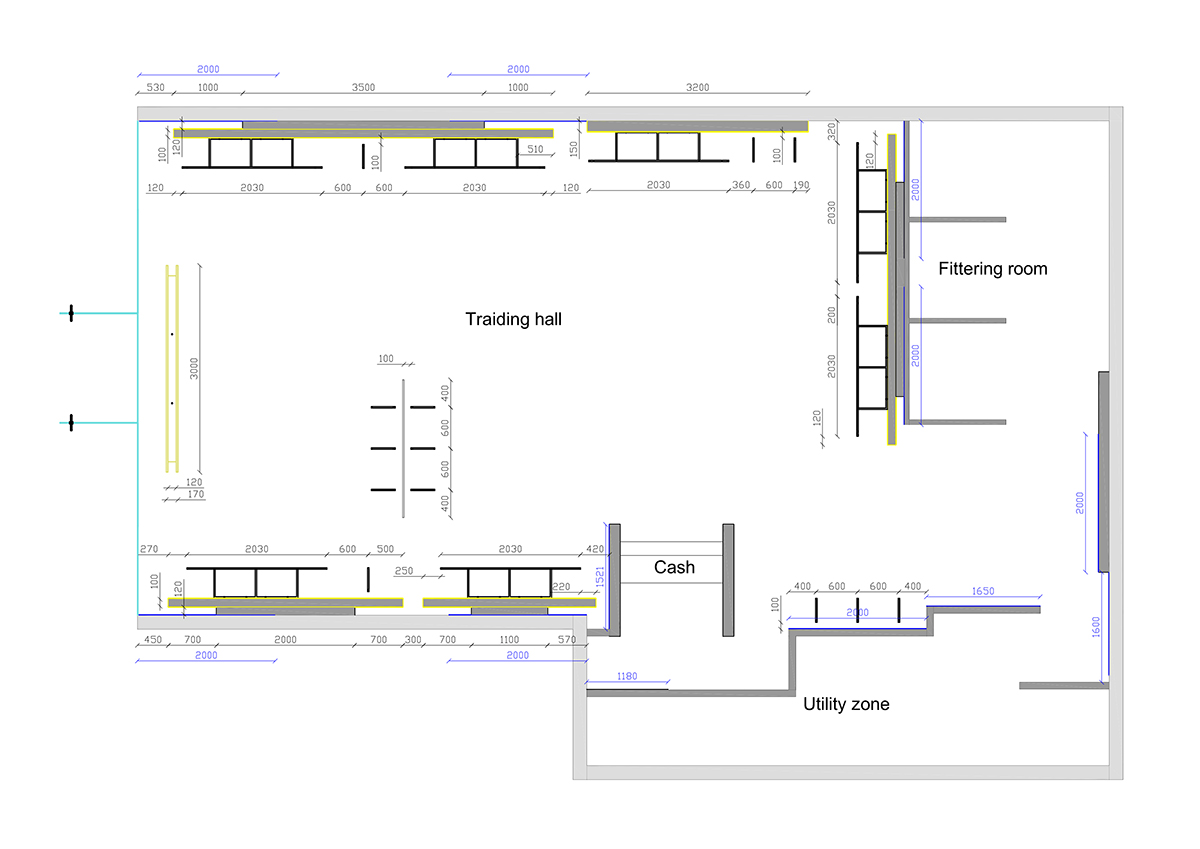
Схема